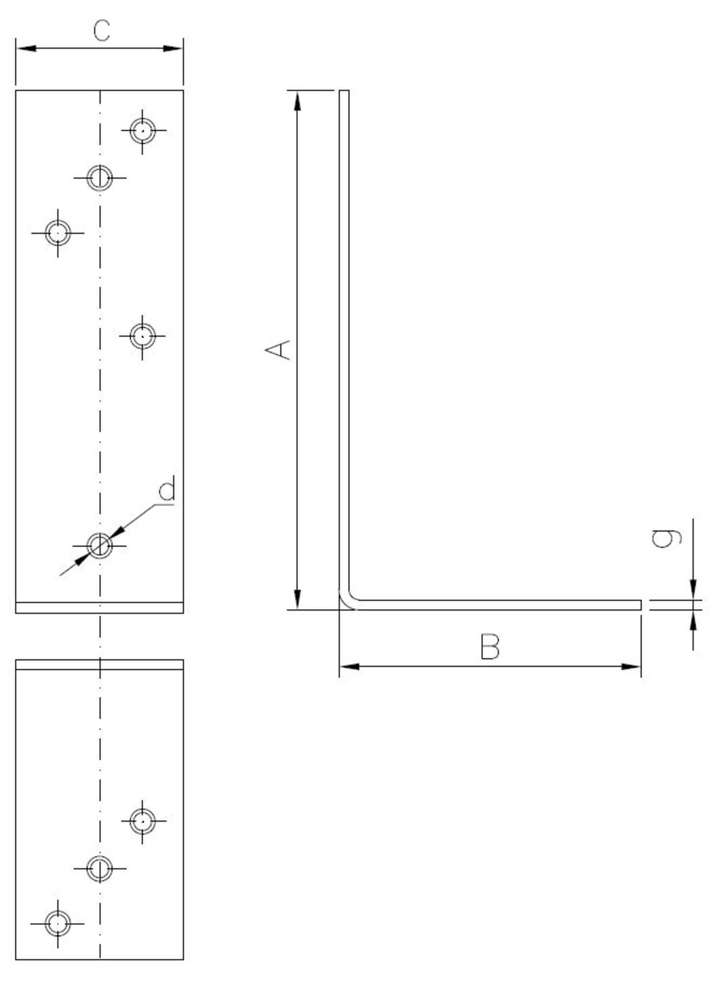
Construction angle bracket
A construction angle bracket is an element used in construction and other fields to reinforce corners and edges of beam structures. It is characterized by an angle shape that allows for effective strengthening and maintenance of beam stability.
Applications:
- Construction: Construction angle brackets are used in construction to strengthen corners and edges of beams in metal and concrete structures.
- Industry: They are utilized in the industry as reinforcing elements for beams and load-bearing structures in machines, equipment, platforms, and other industrial projects.
Benefits:
- The angle shape facilitates installation at corners and edges of beams.
- Durable material ensures exceptional strength.
- Availability in various sizes allows for customization to specific needs.
- Holes or clamps ease installation and attachment to the beam structure.
- Group
- 6206
